на расчет стоимости
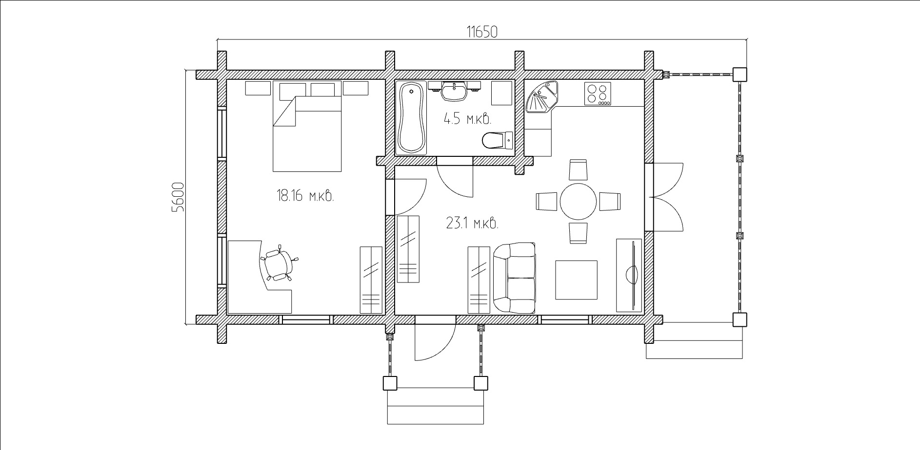
Чистая площадь: 45 м2;
Материал стен: Лафет 200х300 ;
Тип рубки: Норвержская рубка;
Кровля: Металлочерепица;
Фундамент: ЖБ сваи с обвязкой;
Мечта миллионов людей о комфортном уединённом домике в деревне, нашла отражение в проекте сруба загородного бревенчатого дома из лафета СС45. Комфортабельная комната в 18 квадратных метров найдётся не в каждой городской квартире. В комнате может быть расположено всё необходимое для жизни, комфортного отдыха и время препровождения. Зал совмещённый с кухней и прямой выход из зала на террасу, дарят ощущения свободы и безграничного пространства. А терраса становится дополнительной жилой площадью и позволит пить горячий чай из самовара наслаждаясь свежим воздухом. Дом — истинная мечта двух из трёх городских жителей уставших от копоти и смога шумного города и желающих уединения. Так же сохранится возможность встретиться с друзьями, посидеть в просторном зале за большим столом и конечно обустроить место в зале для ночлега засидевшихся гостей. Комфорт и уединение — это главное достоинство небольшого сруба дома из лафета выполненного по проекту СС45
Политика конфиденциальности сайта https://bbs-studio.ru/ BBS Agency
Общество с ограниченной ответственностью «ББ-СТУДИЯ» (ИНН: 3128134797,
КПП: 312801001) (далее – администрация сайта https://bbs-studio.ru/ BBS Agency, Оператор, мы, наш, наши, нас, нам), адрес: info@bbs-studio.ru, придает большое значение защите Вашей частной жизни и безопасности Ваших персональных данных.
Политика предназначена для информирования Вас о наших действиях по сбору, обработке и защите Ваших персональных данных для достижения нами заявленных целей обработки персональных данных на сайте https://bbs-studio.ru/ BBS Agency. Мы соблюдаем требования российского законодательства в области персональных данных. При обработке персональных данных мы придерживаемся принципов, изложенных в ст. 5 Федерального закона от 27.07.2006 г. №152-ФЗ «О персональных данных» (далее – 152-ФЗ).
Просим Вас внимательно изучить Политику конфиденциальности (далее — Политика), чтобы понимать, для достижения каких целей мы осуществляем обработку Ваших персональных данных, а также как Вы можете реализовать права в отношении своих персональных данных, обрабатываемых нами.
Если у Вас есть вопросы, связанные с Политикой, в т.ч. предложения по улучшению ее понимания и навигации, или есть вопросы по обработке нами Ваших персональных данных и их защите, вы можете направить нам обращение одним из способов, указанных в разделе «Контакты».
Термины
Политика предназначена для информирования Вас о наших действиях по сбору, обработке и защите Ваших персональных данных для достижения нами заявленных целей обработки персональных данных на сайте https://bbs-studio.ru/ BBS Agency.
Наш сайт не предназначен для обработки персональных данных несовершеннолетних. Если у Вас есть основания полагать, что несовершеннолетний предоставил нам свои персональные данные через сайт, то просим Вас сообщить нам об этом, написав на почту info@bbs-studio.ru.
3.1.1. Форма заявки на обратную связь
4.1. Общая информация о Ваших правах
В соответствии с 152-ФЗ, Вы имеете следующие права при обработке персональных данных:
4.2. Запрос дополнительной информации для идентификации субъекта персональных данных
В ходе реализации Ваших прав мы можем запрашивать дополнительную информацию, которая позволит нам достоверно идентифицировать Вас. Такая информация будет требоваться в редких случаях. Мы стараемся запрашивать минимально необходимый состав дополнительной информации для Вашей идентификации. Мы не сможем реализовать Ваши права, если в ответ на наш запрос вы не предоставите дополнительную информацию для Вашей идентификации.
4.3. Условия предоставления информации по Вашим правам
Информация, связанная с реализацией Ваших прав, предоставляется бесплатно. Если Ваш запрос является явно необоснованным или чрезмерным, в частности из-за его повторяющегося характера, мы можем отказаться от ответа, либо взимать плату за предоставление запрашиваемой информации.
4.4. Право на доступ к Вашим персональным данным
Вы имеете право получить от нас достоверную информацию об обработке Ваших персональных данных, и, если это возможно, доступ к персональным данным и к следующей информации:
4.5. Право на уточнение Ваших персональных данных
Мы принимаем усилия, направленные на то, чтобы выявлять неточные, неполные или устаревшие данные. Если данные являются неточными, неполными или устаревшими, вы имеете право потребовать от нас исправления данных, касающихся Вас, без лишнего промедления. После исправления Ваших персональных данных мы уведомим Вас об этом.
4.6. Право на обжалование наших действий или нашего бездействия
Вы имеете право возражать против обработки своих персональных данных в ответ на наши действия или наше бездействие. Для этого вы можете обратиться в территориальный орган Роскомнадзора в своем регионе.
4.7. Право на обжалование решений, принятых на основании исключительно автоматизированной обработки персональных данных
Вы имеете право не подвергаться решению, основанному исключительно на автоматизированной обработке, включая профилирование, которое влечет за собой юридические последствия в отношении Вас или аналогичным образом существенно влияет на Вас. Вы вправе обратиться к нам для обжалования наших действий при принятии нами решений на основании исключительно автоматизированной обработки их персональных данных, если такие имеются.
4.8. Право на отзыв согласия
Если Ваши данные обрабатываются на основании согласия, то вы имеете право отозвать его.
4.9. Как Вы можете реализовать свои права?
Для реализации Ваших прав нами представлены несколько способов:
4.10. Как и когда мы не можем реализовать Ваши права
Мы можем ограничить объем наших обязательств и Ваших прав (на доступ к данным, их уточнение, блокирование или удаление), в следующих случаях:
Для реализации некоторых прав существуют особые условия, без выполнения которых право не может быть реализовано. Если мы не можем реализовать Ваше право по Вашему запросу, то мы пишем Вам мотивированный отказ.
Файлы cookie являются одной из технологий, которые мы используем для автоматического сбора информации и улучшения качества контента. Файл cookie — это небольшой текстовый файл, который хранится на устройстве (компьютере, планшете, смартфоне и т.д.) и содержит информацию о Вашей активности в Интернете.
Собираемые cookie на нашем сайте:
| Имя cookie-файла | Тип | Описание | Продолжительность | Провайдер |
| tmr_detect | Ремаркетинговые | Используется для отслеживания взаимодействия пользователя с веб-сайтом | 1 год | bbs-studio.ru |
| _ym_isad | Аналитические | Используется для определения наличия у посетителя блокировщиков рекламы | 2 дня | bbs-studio.ru |
| tmr_lvid | Ремаркетинговые | Используется для отслеживания взаимодействия пользователя с веб-сайтом | 11 месяцев | bbs-studio.ru |
| tmr_lvidTS | Ремаркетинговые | Используется для отслеживания взаимодействия пользователя с веб-сайтом | 11 месяцев | bbs-studio.ru |
| _ym_d | Аналитические | Хранит дату первого визита посетителя на сайт | 1 год | bbs-studio.ru |
| _ym_visorc | Аналитические | Сохраняют информацию о действиях, которые были выполнены при посещении веб-сайта, включая поиск по ключевым словам | 30 минут | bbs-studio.ru |
| _ym_uid | Аналитические | Идентифицирует пользователей сайта | 1 год | bbs-studio.ru |
| yandexuid | Технические | Позволяет различать посетителей | 1 год | yandex.ru |
| i | Технические | Позволяет различать посетителей | 1 год | yandex.ru |
| yabs-sid | Аналитические | Регистрируют поведение пользователя на сайте для внутренней аналитики | Период сессии | yandex.ru |
| yuidss | Аналитические | Собирают информации о поведении на нескольких веб-сайтах | Период сессии | yandex.ru |
Данные, собираемые с помощью cookie-файлов не относятся к специальным категориям или биометрическим в соответствии со ст. 10–11 152-ФЗ и обрабатываются автоматизированным способом. Основанием для обработки ваших данных в этом случае будет согласие на обработку персональных данных, предоставляемого Пользователем сайта путем совершения конклюдентных действий — продолжение пользования сайтом.
По достижении указанных сроков обработки персональные данные уничтожаются путем удаления из информационных систем с помощью встроенных средств информационной системы.
Если вы не хотите, чтобы мы собирали ваши данные с помощью cookie-файлов вы можете отключить их сбор в настройках своего браузера.
Также, как и большинство других информационных ресурсов организаций, наши веб-серверы и системы безопасности время от времени хранят некоторые временные технические данные в своих лог-файлах.
В целях оказания услуг и повышения их качества мы передаем информацию о вас следующим третьим лицам:
ООО «Яндекс» (119021, г. Москва, ул. Льва Толстого, д. 16). Данные передаются для целей веб-аналитики (Яндекс.Метрика). Политика конфиденциальности ООО «Яндекс»: https://yandex.ru/legal/confidential/.
ООО «1С-Битрикс» (109544 Россия, г. Москва, б-р Энтузиастов, д.2, 13 эт., пом. 8-19). Данные передаются с целью хранения контактов, оставивших заявку на расчет стоимости услуг или на обратный звонок. Политика конфиденциальности ООО «1С-Битрикс»: https://www.bitrix24.ru/about/privacy.php
Персональные данные, которые мы собираем и храним, считаются конфиденциальной информацией. Они защищены от потери, изменения или несанкционированного доступа согласно законодательству Российской Федерации в области персональных данных. Для этого мы применяем технические средства и организационные меры. Мы постоянно совершенствуем наши системы защиты данных.
Мы оставляем за собой право вносить изменения в нашу Политику в любое время. Мы просим Вас регулярно просматривать все обновления нашей Политики. Мы будем направлять уведомления об изменениях Политики в случае, если такие изменения являются существенными, всеми доступными нам способами.
Обращаем Ваше внимание, что указанные в данном пункте контакты используются только для взаимодействия по вопросам обработки и защиты Ваших персональных данных. Обращения, направленные Вами по указанным в Политике контактам, не связанные с защитой данных, не будут рассмотрены. Для вопросов, связанных с обработкой и защитой персональных данных, вы можете обратиться к нам по электронной почте info@bbs-studio.ru.
Обновлен:
13.07.2022